詳細情報
價格:6.98億日元(2024年12月27日前有效)
約合:3,350萬人民幣(2024年12月27日前有效)
位置:東京都港區虎之門3-25-5
土地權利:永久產權
現狀:空室
建筑年代:2014年2月
總戶數:110戸
構造:鋼筋混凝土造 地上22層
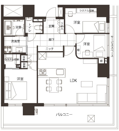
樓層:22層 頂樓東南向角部屋
房產戶型:3室1廳
使用面積:76.31m²
陽臺面積:22.86㎡
管理費:27,700日元/月
修繕費:10,300日元/月
交通:①東京地鐵日比谷線【神谷町】站
②東京地鐵南北線【六本木一丁目】站
③東京地鐵日比谷線【虎之門Hills】站
.png)
推薦理由
Wellis Tower Atago Toranomon 是一座于 2014 年 2 月竣工的塔樓公寓,其外觀采用大量玻璃,銳利奪目。該場地東北側面向一條約22m寬的公共道路,位于商業區的一角。公寓對面有一家快餐店和咖啡店,很方便,從最近的車站回來的路上有一家便利店。此外,該地區的教育環境良好,附近有公立中小學,以及芝公園和圖書館,還有多所私立初中和高中。
出售時,Wellith Tower Atago Toranomon 戶型從 1LDK 到 3LDK,面積從 30 平方米到 70平方米,可容納從單身到家庭的各種家庭配置。公寓的公共走廊是明亮的室內走廊,入口前有窗戶和壁龕,營造出重視隱私的高品質生活空間。公寓樓內每層都設有垃圾存放處,方便住戶倒垃圾。與此同時,室內垃圾處理器、天花板卡式空調、浴室供暖干燥機、全自動浴室,以及共用部禮賓柜臺、送貨柜等設施齊全,所有管理均外包給日間管理系統,可以為您提供舒適的生活。距離Wellis Tower最近的車站是東京地鐵日比谷線的神谷町站,出行非常便利。
○ 2014年2月建成
○ 24小時可倒垃圾(各樓層設有垃圾寄存處)
○ 配有帶電視監視器的對講機
○ 送貨儲物柜
○ 酒店風格的內部走廊設計
○ 允許攜帶寵物(詳情請參考公寓制度)
○ 提供禮賓服務
○ 22 樓西南角和東南角房間
○ 專屬面積 76.31 平方米
○ 洗碗機/烘干機、垃圾處理機
○ 帶通風烘干機的浴室
○ 地暖(起居室/用餐區)
○ 從起居室/餐廳可欣賞東京塔景觀
○ L型寬陽臺
地理位置
虎之門是一個非常安全的商業區,站前辦公樓鱗次櫛比,周邊有政府機關、大使館、酒店等。
這里有一家名為“成城石井愛宕Green Hills Store”的食品超市。進口食材選擇豐富,24小時營業,深夜購物也很方便。 另外,神谷町站周邊還有超市“Maruetsu Petit Shiroyama Hills Store”、百元店“Cando Shiroyama Hills Store”、藥妝店“Tomo's Kamiyacho Store”以及“ “芝要草商店”,還有蔬菜水果店和玉川屋等商店,是一個完美的購物場所。
虎之門周圍正在拔地而起的開發大樓,乍一看像是商業區,但很多大樓的下層都設有購物和美食商業設施。
朝東京塔方向走,還會看到芝公園,里面有網球場、棒球場等體育設施。
愛宕山 (Atago Hills) 是 NHK 廣播博物館的所在地,展示了 NHK 廣播的歷史。日本氣象廳大樓內還設有日本氣象廳氣象科學館和港區科學館,是家庭旅游的好去處。 此外,這里還有商人大倉喜八郎創辦的日本第一家私人美術館“大倉集古館”、計劃于 2022 年(令和 4 年)重新開放的“泉宮博古館東京”(目前已關閉)以及古典音樂會。著名的三得利音樂廳也在步行范圍內。 醫療設施方面,東京慈惠大學醫院、虎之門醫院等綜合醫院都位于步行范圍內,可以提供緊急服務,因此您可以放心。另外,愛宕山的會員制診所“Clint Exe Clinic”、整容診所“Clint Junes”、 “中村診所”等,還有各種可以日常使用的診所,都會在晚上和周日開放。

港區:港區位于東京23區中央偏南部。該區是擁有最多企業總部的地區,是日本企業的中心。虎之門、新橋、芝為重要的辦公商區,經濟活動十分活躍。青山、赤坂等商業地區;六本木等娛樂中鎮;麻布、白金臺等高級住宅區;汐留、臺場等大規模開發區,是該區展現各種不同風貌的代表。東宮御所、芝公園、白金臺的自然教育園等是豐富的自然環境。駐日大使館與外資企業的大量進駐,讓港區的外國人居住者比例非常高。
受到東京2020年奧運會的影響,進入港區的企業和觀光者數量會逐漸增加,商業地域周邊的地價預計會出現較大增長。港區坐擁慶應大學、明治學院、東海大學等知名學府,因此針對大學生租賃的房產投資也可為投資帶來穩定收益。
交通方面,可以同時利用復數條線路的品川站、新橋站等車站不僅通往東京都心十分便利,通往橫濱,川崎和神奈川方向也是十分快捷,亦可以利用高人氣的新干線。
對于房產投資,港區地價較東京其他區高,但從保值率角度,港區地價出現下跌的風險遠小于其他地區。
圖片總覽
公寓外觀

公寓大廳
.png)
公寓室內

公寓室內
.png)
公寓室內
.png)
公寓室內
.png)
公寓外景

公寓戶型
.png)